Property
Beds
3
Full Baths
2
1/2 Baths
None
Year Built
1950
Sq.Footage
1,392
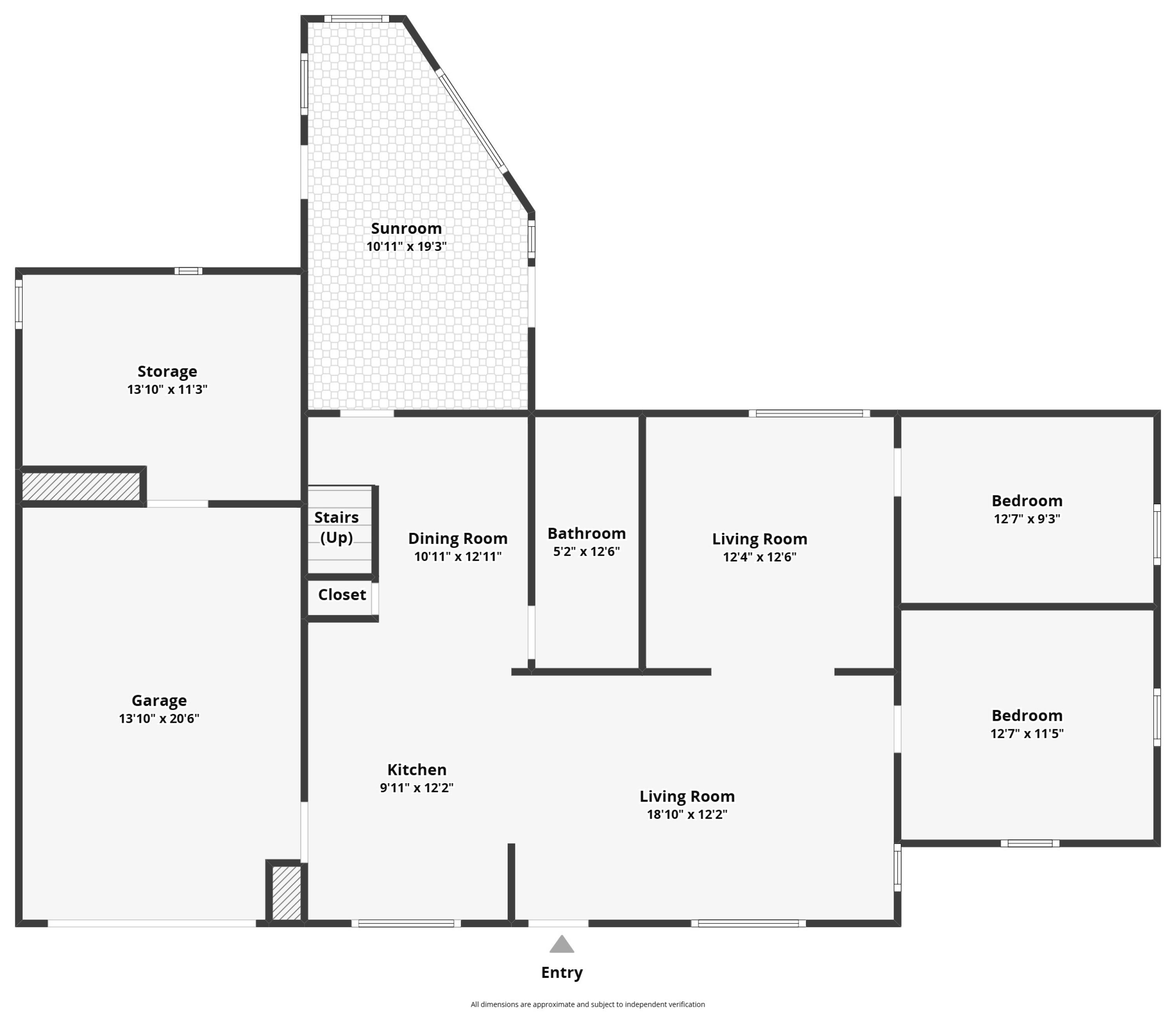
This 1950s home has undergone some remodeling. It features vinyl windows and a tin roof. The flooring is a mix of laminate, wood, tile and carpet. The homes heating is provided by a wood stove and an oil monitor stove. On the main level, there are two bedrooms, each with an armoire. The main level bathroom features a newly installed tub surround, vanity, and stylish tile flooring. There is also a finished bonus room, although it lacks a heat source. The upper level offers a 360-square-foot space that can serve as a primary bedroom. It includes a walk-in shower and an additional office area. The property includes an attached garage with a concrete floor, and there is a 13' x 11' storage area with a dirt floor. The outdoor space features a fenced back yard and a grape vine. The lot size is 0.17 acres and you can see the city park from your front yard. This home is attractively priced for a quick sale, so do not hesitate to reach out for more information today!
Features & Amenities
Interior
-
Other Interior Features
Ceiling Fan(s), Kitchen Island
-
Total Bedrooms
3
-
Bathrooms
2
-
Basement YN
NO
-
Cooling YN
YES
-
Cooling
None, Ceiling Fan(s)
-
Heating YN
YES
-
Heating
Oil, Wood
-
Pet friendly
N/A
Exterior
-
Garage
Yes
-
Garage spaces
1
-
Construction Materials
Frame
-
Parking
Attached, Driveway, Gravel
-
Pool
No
Area & Lot
-
Lot Features
Level
-
Lot Size(acres)
0.17
-
Property Type
Residential
-
Property Sub Type
Single Family Residence
-
Architectural Style
Other
Price
-
Sales Price
$198,000
-
Tax Amount
1204.59
-
Zoning
res
-
Sq. Footage
1, 392
-
Price/SqFt
$142
HOA
-
Association
No
School District
-
Elementary School
Humbolt Elem
-
Middle School
Check with District
-
High School
Grant Union Jr/Sr High
Property Features
-
Foundation Details
Concrete Perimeter
-
Senior Community YN
NO
-
Sewer
Public Sewer
-
Tax Lot
2400
-
Water Source
Public
Schedule a Showing
Showing scheduled successfully.
Mortgage calculator
Estimate your monthly mortgage payment, including the principal and interest, property taxes, and HOA. Adjust the values to generate a more accurate rate.
Your payment
Principal and Interest:
$
Property taxes:
$
HOA fees:
$
Total loan payment:
$
Total interest amount:
$
Location
County
Grant
Elementary School
Humbolt Elem
Middle School
Check with District
High School
Grant Union Jr/Sr High
Listing Courtesy of Lindsey Madden , Madden Realty
RealHub Information is provided exclusively for consumers' personal, non-commercial use, and it may not be used for any purpose other than to identify prospective properties consumers may be interested in purchasing. All information deemed reliable but not guaranteed and should be independently verified. All properties are subject to prior sale, change or withdrawal. RealHub website owner shall not be responsible for any typographical errors, misinformation, misprints and shall be held totally harmless.
AGENT
CarmineLupertazzi
Call Carmine today to schedule a private showing.
* Listings on this website come from the FMLS IDX Compilation and may be held by brokerage firms other than the owner of this website. The listing brokerage is identified in any listing details. Information is deemed reliable but is not guaranteed. If you believe any FMLS listing contains material that infringes your copyrighted work please click here to review our DMCA policy and learn how to submit a takedown request.© 2024 FMLS.